Обяви За нас Контакти
Продава 2-СТАЕН
град София, Витоша
бул. Симеоновско шосе
227 000 €
443 973.41 лв.

(2 987 €, 5 842.06 лв./m2)
Цената е без ДДС
Коригирана в 14:33 на 12 февруари, 2026 год.
Обявата е посетена 23803 пъти.
Площ:
76 m2
Етаж:
2-ри от 8
Газ:
ДА
ТEЦ:
НЕ
Строителство:
Тухла, Ще бъде въведен в експлоатация 2027 г.

Описание на имота:


ИНВЕСТИЦИЯ В БЪДЕЩЕТО! ПРЕМИУМ ЛОКАЦИЯ И АРХИТЕКТУРА! МНОЖЕСТВО СВОБОДНИ ДВУСТАЙНИ, ТРИСТАЙНИ И ЧЕТИРИСТАЙНИ АПАРТАМЕНТИ!

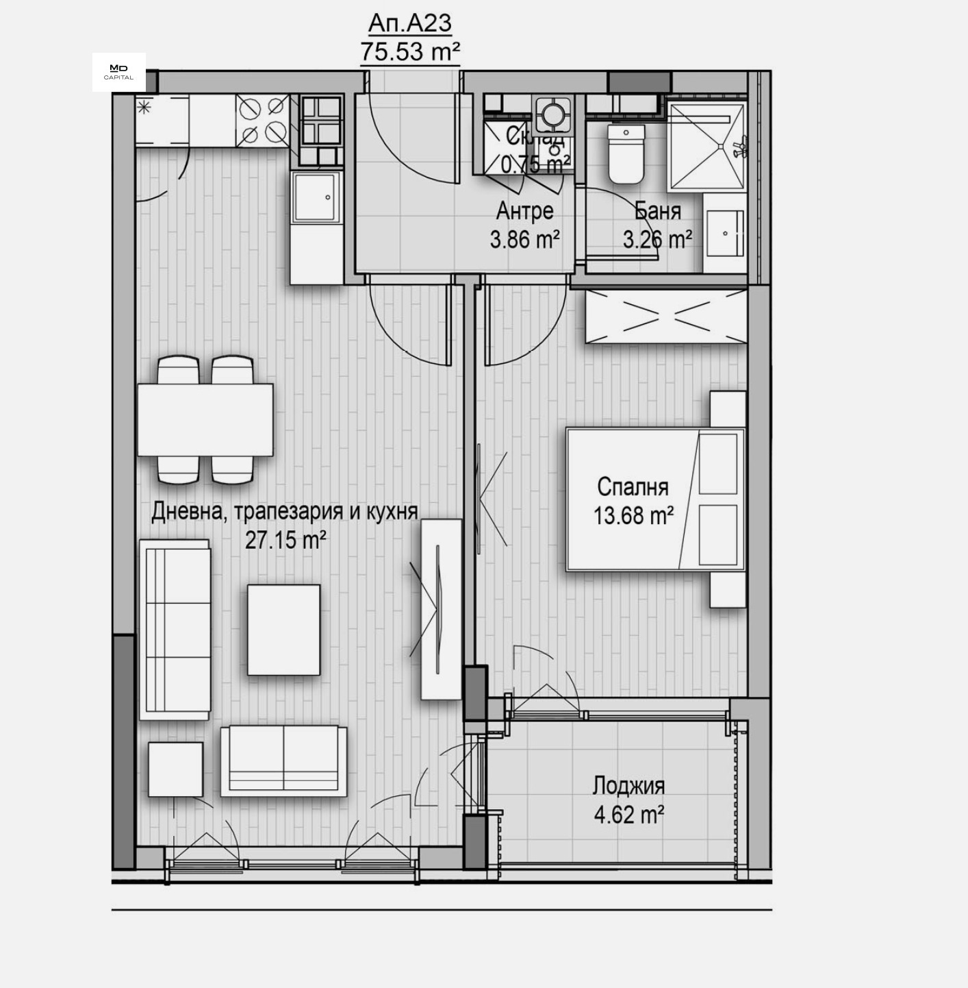
🌟 Имаме удоволствието да представим на вашето внимание премиум имот, предлагащ площ от 75,53 кв.м, Имотът се намира нашата най-нова сграда SIMEONOVSKO 12 - гр.София, ул. Симеоновско шосе 12.

🏛 Този имот е символ на престиж и иновацията в сърцето на София, а именно бул. Симеоновско шосе 12.

Апартамент A23 се намира във вход А на етаж 2. С обща квадратура 75,53 кв.м.
Изложение: юг-изток
Разпределение: Входно предверие, Спалня, Дневна с кухненски бокс, Баня с тоалетна, Тераса

📍 Имотът се намира в сграда SIMEONOVSKO 12 , която съчетава в себе си функционалност, енергийна ефективност и безкомпромисно качество на строителството.
Локацията на сградата се откроява със своето престижно местоположение само на крачки от Ловен парк и Зоопарк София, метростанция Витоша, Болница Вита и Мол Парадайз. Предлагайки несравнима удобство и достъпност, които много малко имоти в София биха предоставили. Проектиран с иновативен дизайн, този имот представлява архитектурна икона, която носи модерния дух на столицата.

🚗 Сграда SIMEONOVSKO 12 е проектирана с мисъл за комфорта за живущите, като предлага закупуване на допълнителни паркоместа.

За да запазите час за оглед, обадете се сега тел.0888 575 449.
Разгледайте всички свободни имоти на www.mdcapital.bg
Особености
Тухла
За контакт:
0888619755
Инвеститор:
ЕМДИ БИЛД ООД
0888619755,0888575449, 0894894370
ЕМДИ БИЛД ООД logo
Медал за прослужено време
В imot.bg от 2017 г.
mdbuild.imot.bg
Адрес:
област София, гр. София, гр.София, ул.'Г.С.Раковски' 96, ет.2
http://www.mdcapital.bg
ИЗПРАТИ ЗАПИТВАНЕ
ИЗПРАТИ ЗАПИТВАНЕТО

Продава 2-СТАЕН
град София, Витоша
бул. Симеоновско шосе
Обява: 1b173254199673174

227 000 €
443 973.41 лв.
(2 987 €, 5 842.06 лв./m2)

Цената е без ДДС
ЗАПАЗИ ОБЯВАТА

Местоположение: град София, Витоша, бул. Симеоновско шосе

Допълнителни данни за имотите в района и сравнение с други райони

Покажи

Период

и 2 месеца

* Средните цени са определени чрез медианна стойност